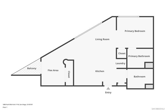
1080 Park Boulevard #1116
San Diego, CA 92101
$ 625,000
Price
2
Beds
2
Baths
913 Sq. Ft.
$685 / Sq. Ft.
1 Days On Market
Have You Been Pre-Qualified? Start Now
Views! Located in the vibrant East Village neighborhood of Downtown San Diego, Smart Corner is situated in an ideal location, just minutes from the Gaslamp District and everything downtown San Diego has to offer. This modern-style condo offers an amazing layout for entertaining, featuring an open-concept living room and kitchen with an 11th floor WEST-facing balcony. Recent upgrades include new luxury vinyl flooring, paint throughout, and all new appliances. Mere steps from public transportation, easy access to all major freeways while only minutes from top-rated beaches. Entering the home, you will be met with in-unit laundry, hallway linen closet, and a full bathroom. Exposed ducting, cement ceilings and an optional floor plan make for an amazing live/work scenario. Two assigned parking spaces, central heating, and air, roof top barbecues and hot tub, along with 2nd-floor gym. Perfect for a first-time buyer, investor or someone looking to downsize.
Customize Calculations
|
Compare
Mortgage Rates
Want all these details? Sign In or Join Now
Grocery Stores
Drug Stores
Coffee Shops
Restaurants
Health & Medical
Fitness & Activity
Arts & Entertainment
Nightlife & Bars
Already registered? Login